top of page

Librería
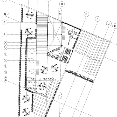
Después de hacer un análisis del barrio Cedritos, los habitantes y sus necesidades, se llega a la conclusión de que hace falta una librería, por esto se hace esta propuesta interviniendo un lote esquinero, con bastante flujo peatonal y vehicular, donde actualmente hay un restaurante de comida rápida.
La idea es que sea un lugar público, con espacios para personas de todas las edades.

bottom of page














